Design d'intérieur
AVANT-PROJET SOMMAIRE (APS)
Étude du lieu, propositions d’aménagement & moodboard
→ Pour poser les bases d’un projet fonctionnel et unique, qui vous ressemble.
AVANT-PROJET DEFINITIF (APD)
Plans 2D détaillés | Matériaux | Mobilier | Rendus 3D
→ Pour concrétiser votre projet : dossier complet prêtpar des artisans.
Croquis, matériaux, modélisation 3D.
→ Pour un meuble unique, bien intégré.
MOBILIER
SUR-MESURE
DECORATION D'INTERIEURE
Sélections ciblées de mobiliers, luminaires, objets décoratifs... → Pour un espace pensé dans les moindres détails.
Je vous accompagne dans vos projets de rénovation et d'agencement de vos espaces intérieurs, sur les phases de conception du projet : des premiers croquis aux plans 2D et 3D.
CONCEVOIR DES ESPACES QUI VOUS RESSEMBLENT


EXEMPLES DE RENDUS PHOTO-REALISTES
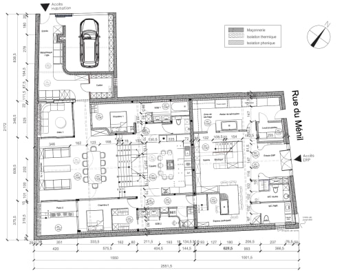
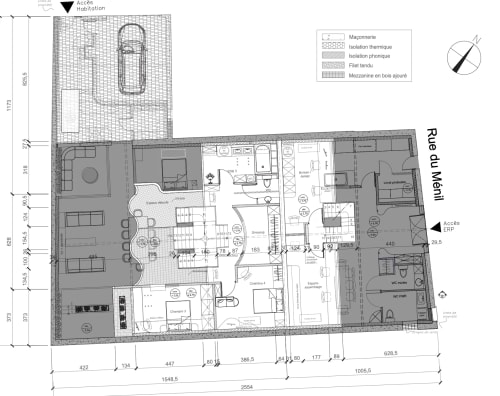
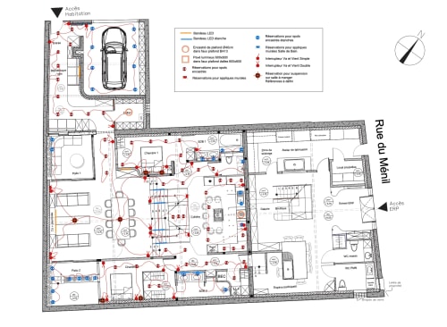
EXTRAITS DE PROJET (ERP MIXTE - ASNIERES - 2025)


Je vous propose mes services de création personnalisée appliquée à l'architecture et au design d'intérieur.
Qu'il s'agisse de réaliser un tableau mural sur-mesure, une peinture sur porte ou une fresque murale grandeur nature, l'art texturé vous offrira une expérience immersive unique alliée à une esthétique personnalisable selon vos couleurs et vos envies, tout en s'adaptant à la lumière et la circulation dans l'espace.
Des réalisations fortes qui trouveront leur place aussi bien dans l'univers résidentiel que dans les espaces professionnels recevant du public, tels que les hôtels - restaurants haut-de-gamme.
Porte en contreplaqué de bouleau & nyangan, réalisation sur mesure. 2023.
Fresques texturées : quand l'art & le design d'intérieur se rencontrent.
Réalisation de fresques immersive pour les professionnels recherchant une expérience distinctive (hôtels, restaurants, ...) et le résidentiel.





















